Выпускницы Британской школы дизайна представили проект приспособления усадьбы Покровское-Стрешнево
Друзья, я хочу познакомить вас с новым проектом выпускников Британской школы дизайна. Проект "Метаморфоза" предполагает бережную и разумную реставрацию усадьбы Покровское-Стрешнево и ее последующее приспособление под отель. Сейчас проект реставрации и возвращения усадьбы к жизни готовит ее новый собственник, ПБУ «Мосприрода». А между тем, выпускницы Британской школы дизайна Елена Медведникова и Анастасия Терехова предложили свой вариант - с помощью относительно небольших средств превратить усадьбу в востребованное место. Так и появился выпускной проект молодых дизайнеров, созданный под руководством дизайнеров и преподавателей Школы Екатерины Григорьевой и Елены Бабкиной.
Дизайнерский тандем предлагает превратить усадьбу Покровское-Стрешнево в отель с интересной концепцией. Как и в проектах восстановления усадеб Полибино и Знаменское-Раек, все дизайнерские решения Школы учитывают особый статус усадьбы как памятника культурного наследия и не предполагают никаких перепланировок и прочих фундаментальных изменений.
- "Важной темой сегодня является кастомизация. В интерьерах номеров нам хотелось уйти от ощущения гостиницы. Так, как будто вы остановились погостить у хозяина усадьбы, среди предметов мебели и искусства, которыми он и его семья любовно обставляли свое жилое пространство. Мы хотели создать пространство, где стерты грани между функциональным и художественным", - подчеркивают Елена Медведникова и Анастасия Терехова.
Итак, ниже я в подробностях покажу вам проект приспособления усадьбы Покровское-Стрешнево от выпускниц Британской школы дизайна. Что скажете? Хотели бы видеть в усадьбе нечто подобное до тех пор, пока не встанет вопрос о ее научной реставрации?


2.

3.

4.

5.

6.

7.

8.

9.

10.

11.

12.

13.

14.

15.

16.
В низких сводах первого этажа мы разместили ресепшн и лобби бар. Архитектура пространства, исполненная в псевдорусском стиле, перекликается с фасадом здания, но отличается от остальных помещений усадьбы. Нам не хотелось визуально загромождать пространство под арочными сводами на тяжелых колоннах, поэтому стойка ресепшн и барная стойка покрыта зеркальной поверхностью и, отражая все вокруг «растворяются» в пространстве, а легкая, отсылающая нас к outdoor, мебель лобби бара кажется невесомой на контрасте с монументальной архитектурой пространства

17.

18.
В низких сводах первого этажа мы разместили ресепшн и лобби бар. Архитектура пространства, исполненная в псевдорусском стиле, перекликается с фасадом здания, но отличается от остальных помещений усадьбы. Нам не хотелось визуально загромождать пространство под арочными сводами на тяжелых колоннах, поэтому стойка ресепшн и барная стойка покрыта зеркальной поверхностью и, отражая все вокруг «растворяются» в пространстве, а легкая, отсылающая нас к outdoor, мебель лобби бара кажется невесомой на контрасте с монументальной архитектурой пространства .

19.

20.

21.

22.
Ресторан также расходится в восточном крыле, пристроенном к усадьбе позже. На создание интерьера ресторана нас вдохновил тот факт, что в ансамбле усадьбы находится оранжерея.

23.

24.

25.

26.
Мебель Tonnet и Kartell по фактуре и цветам поддерживают концепцию оранжереи.

27.

28.
В центральной части второго этажа господского дома усадьбы находилась анфилада парадных комнат, богато декорированных лепниной и каминами с мраморными фасадами. Несмотря на обветшание усадьбы многие элементы исторического убранства сохранились, хотя и значительно пострадали от времени и человеческого отношения.

29.

30.
Интерьер общественных зон, которые мы разместили на втором этаже представляет собой консервация сохранившихся элементов убранства в сочетании предметами мебели дизайна XX и XXI века, дополнив сложные изгибы ордера колонн и узор лепнины простыми геометрическими формами и линиями мебели. Чтобы не закрывать обзор каминных фасадов и не загромождать пространство, мы предложили часть кресел сделать прозрачными.

31.
Во второй гостиной расположение колонн, образующих круг, подсказало нам форму дивана. Легендарный диван Вернера Пантона прекрасно подошел и по функции. На обычном диване незнакомые люди редко подсаживаются друг к другу, а этот диван позволяет разместиться большому количеству человек, при том каждый находится в приватной зоне. Кроме того, направление сидений позволяет гостям общаться в центральной зоне или уединиться с книгой у окна или камина.

32.

33.

34.
Настроение в зале создают арт-объекты, снижая градус серьезности и парадности исторической архитектуры. Как, например, диско-шар на полу или мраморная статуя итальянского скульптора-хулигана Фабио Виале, покрытая татуировками.

35.

36.

37.

38.

39.

40.

41.

42.

43.

44.

45.

46.

47.
Экскурсии по усадьбам на сайте usadboved.ru
Дизайнерский тандем предлагает превратить усадьбу Покровское-Стрешнево в отель с интересной концепцией. Как и в проектах восстановления усадеб Полибино и Знаменское-Раек, все дизайнерские решения Школы учитывают особый статус усадьбы как памятника культурного наследия и не предполагают никаких перепланировок и прочих фундаментальных изменений.
- "Важной темой сегодня является кастомизация. В интерьерах номеров нам хотелось уйти от ощущения гостиницы. Так, как будто вы остановились погостить у хозяина усадьбы, среди предметов мебели и искусства, которыми он и его семья любовно обставляли свое жилое пространство. Мы хотели создать пространство, где стерты грани между функциональным и художественным", - подчеркивают Елена Медведникова и Анастасия Терехова.
Итак, ниже я в подробностях покажу вам проект приспособления усадьбы Покровское-Стрешнево от выпускниц Британской школы дизайна. Что скажете? Хотели бы видеть в усадьбе нечто подобное до тех пор, пока не встанет вопрос о ее научной реставрации?

ОБ АВТОРАХ
Медведникова Елена
"До обучения в БВШД я получила юридическое и педагогическое образование, защитила кандидатскую диссертацию и преподавала правовые дисциплины в одном из ведущих государственных вузов. Процесс преподавания мне нравился, однако меня не покидало желание создавать что-то свое и тяга к прекрасному. Сегодня я не работаю по юридической специальности, но, по примеру Василия Кандинского, планирую связать науку и искусство отношением дополнительности.
В моих планах на будущее стать успешным дизайнером интерьера, настоящим профессионалом своего дела.Еще у меня появилась мечта однажды вернуться к преподаванию. Но уже в Британской Высшей Школе Дизайна".
Терехова Анастасия
"Первое профильное высшее образование освоено по специальности, направленной на художественную обработку материалов, ювелир-дизайнер. После выпуска я посвятила себя не менее интересной сфере деятельности, как бизнес-авиация, где получила развитие в таких областях, как декорирование, флористика и этикет. Творческая среда стала для меня образом жизни и интуитивным путём направила в Британскую Высшую Школу Дизайна, предварительно пройдя курс на подготовительном отделении, который главным образом сфокусирован на раскрытие творческого потенциала и развитие креативного мышления. Затем наступило основное двухгодичное обучение по специальности дизайн интерьера, сосредоточив меня на технике, мастерстве и практике. В это же время прошла дополнительные курсы по различным программам, включая Adobe и английский язык для дизайнеров интерьера.
Я люблю путешествовать, где черпаю вдохновение и набираюсь энергией, идеями для дальнейшей творческой реализации и рабочего процесса".
2.
КОНЦЕПЦИЯ
«Метаморфоза» – проект приспособление заброшенной исторической усадьбы «Покровское-Стрешнево» в уникальный по своей атмосфере современный отель. Социально-значимой целью нашего проекта является привлечение внимания к огромному потенциалу культурного наследия и необходимости его сбережения и эффективного использования как одного из важнейших ресурсов национальной и мировой экономики, на примере усадебного ансамбля «Покровское-Стрешнево» путем придания старинной усадьбе новой функции.
Культурное наследие, наряду с природными богатствами, – капитал невозместимой ценности. Утраты культурных ценностей невосполнимы и необратимы. Они не могут быть компенсированы ни развитием современной культуры, ни созданием новых значительных произведений. История усадьбы насчитывает четыре века. Усадьба неоднократно перестраивались, ее облик и стиль постоянно трансформировались в соответствии со вкусом хозяев и духом времени, порой довольно радикально. Воплощая свои идеи, вдохновленные путешествиями по миру, хозяева не раз кардинально меняли не только ее интерьер, но и экстерьер. Так, например, к более раннему классическому фасаду были пристроены два крыла в псевдорусском стиле. Однако, в результате известных исторических событий прошлого века, перевоплощения усадьбы прекратились. Неудачные попытки реставрации, пожары, судебные тяжбы о собственности не способствовали ее сохранению. Усадьба ветшала и оказалась в результате заброшена.
Долгая история, удивительная атмосфера и невероятные трансформации усадьбы подсказали нам название «Метаморфоза» и вдохновили нас на проект перерождения усадебного ансамбля, приспособление его под новую функцию и создание интерьера бутик-отеля, где уникальные и авторские предметы мебели и произведения искусства, которые могли бы находиться в собрании хозяев усадьбы, открывают новую страницу истории усадьбы с характером. Важной темой сегодня является кастомизация. В интерьерах номеров нам хотелось уйти от ощущения гостиницы. Так, как будто вы остановились погостить у хозяина усадьбы, среди предметов мебели и искусства, которыми он и его семья любовно обставляли свое жилое пространство. Мы хотели создать пространство, где стерты грани между функциональным и художественным.
3.
4.
5.
ПОДРОБНОЕ ОПИСАНИЕ (ПРЕЗЕНТАЦИЯ)
Мы, Анастасия Терехова и Елена Медведникова, представляем нашу совместную работу «Метаморфоза» – проект приспособление заброшенной исторической усадьбы «Покровское-Стрешнево» в уникальный по своей атмосфере современный отель. История усадьбы насчитывает четыре века. Усадьба неоднократно перестраивались, ее облик и стиль постоянно трансформировались в соответствии со вкусом хозяев и духом времени, порой довольно радикально. Воплощая свои идеи, вдохновленные путешествиями по миру, хозяева не раз кардинально меняли не только ее интерьер, но и экстерьер. Так, например, к более раннему классическому фасаду были пристроены два крыла в псевдорусском стиле.
Однако, в результате известных исторических событий прошлого века, перевоплощения усадьбы прекратились. Неудачные попытки реставрации, пожары, судебные тяжбы о собственности не способствовали ее сохранению. Усадьба ветшала и оказалась в результате заброшена. Долгая история, удивительная атмосфера и невероятные трансформации усадьбы подсказали нам название «Метаморфоза» и вдохновили нас на проект перерождения усадебного ансамбля, приспособление его под новую функцию и создание интерьера бутик-отеля, где уникальные и авторские предметы мебели и произведения искусства, которые могли бы находиться в собрании хозяев усадьбы, открывают новую страницу истории усадьбы с характером. Не только экстерьер усадьбы представляет собой смесь эпох и стилей. Оказавшись внутри господского дома, взору предстают абсолютно разные по характеру и атмосфере помещения. Приглашаем Вас прогуляться по ним.
6.
7.
8.
9.
10.
11.
12.
13.
14.
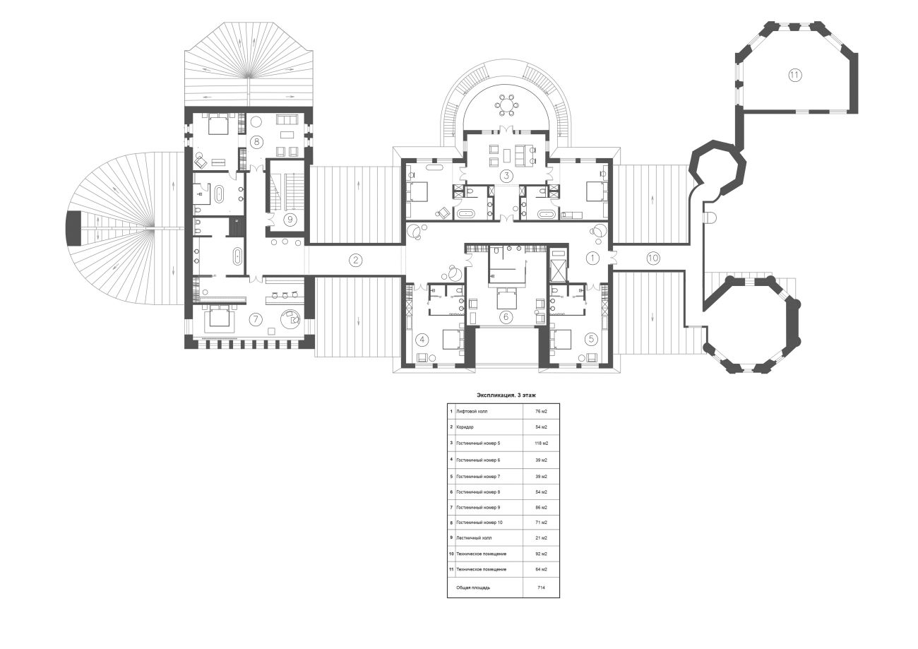
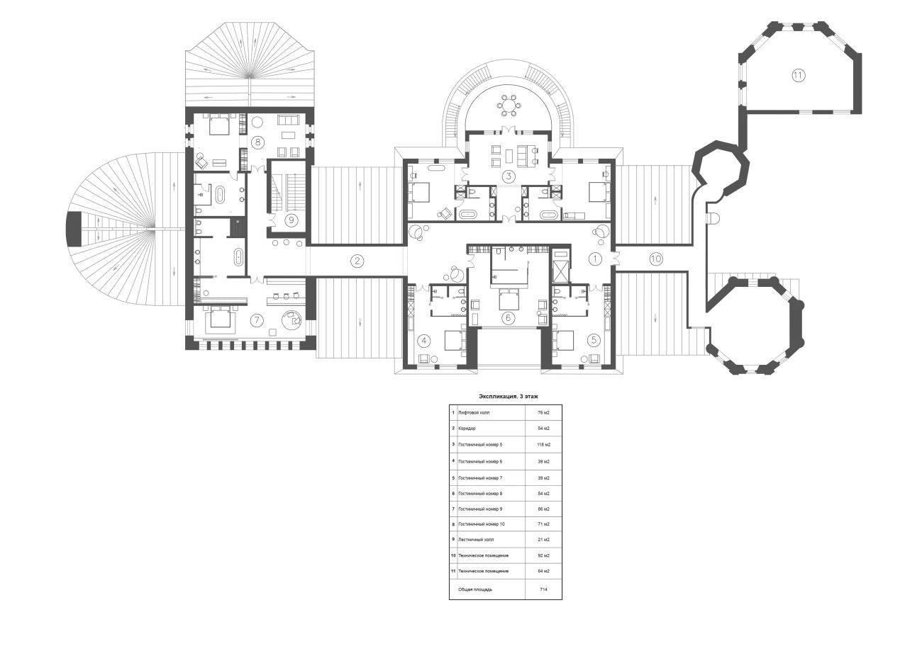
Первый этаж является не жилым, здесь расположены входная группа, зоны ресепшна, лобби бар, административная зона отеля, а также бизнес-центр, бар и салон антиквариата в восточном крыле и бьюти-бар с отдельным входом в западном. Мы выяснили, что в исторических стенах запрещено организовывать функции, связанные с химией , вроде салонов красоты и бассейнов, поэтому организовали бьюти-зону с учетом существующих ограничений.
На втором этаже расположены общественные зоны, ресторан, конференц-зал и гостиные, а также жилые номера. Чтобы иметь статус бутик-отеля, необходимо располагать номерным фондом минимум в 10 единиц. (Иначе можно получить статус только B&B). Также, на втором этаже организован номер для инвалидов. Для более удобного перемещения по общественным зонам отеля мы предусмотрели в номере два входа.
На третьем этаже расположены только жилые номера, один из которых имеет две спальни, и хозяйственные помещения.
15.
16.
В низких сводах первого этажа мы разместили ресепшн и лобби бар. Архитектура пространства, исполненная в псевдорусском стиле, перекликается с фасадом здания, но отличается от остальных помещений усадьбы. Нам не хотелось визуально загромождать пространство под арочными сводами на тяжелых колоннах, поэтому стойка ресепшн и барная стойка покрыта зеркальной поверхностью и, отражая все вокруг «растворяются» в пространстве, а легкая, отсылающая нас к outdoor, мебель лобби бара кажется невесомой на контрасте с монументальной архитектурой пространства
17.
18.
В низких сводах первого этажа мы разместили ресепшн и лобби бар. Архитектура пространства, исполненная в псевдорусском стиле, перекликается с фасадом здания, но отличается от остальных помещений усадьбы. Нам не хотелось визуально загромождать пространство под арочными сводами на тяжелых колоннах, поэтому стойка ресепшн и барная стойка покрыта зеркальной поверхностью и, отражая все вокруг «растворяются» в пространстве, а легкая, отсылающая нас к outdoor, мебель лобби бара кажется невесомой на контрасте с монументальной архитектурой пространства .
19.
20.
21.
22.
Ресторан также расходится в восточном крыле, пристроенном к усадьбе позже. На создание интерьера ресторана нас вдохновил тот факт, что в ансамбле усадьбы находится оранжерея.
23.
24.
Сделать крышу стеклянной не удалось, так как над рестораном находится чердак. Мы сделали потолок стеклянным применив систему освещения, имитирующую естественный свет, CoeLux. Металлическая конструкция, подобие свода оранжереи, подвесная, закладывается в перекрытия, колонны самонесущие.
25.
26.
Мебель Tonnet и Kartell по фактуре и цветам поддерживают концепцию оранжереи.
27.
28.
В центральной части второго этажа господского дома усадьбы находилась анфилада парадных комнат, богато декорированных лепниной и каминами с мраморными фасадами. Несмотря на обветшание усадьбы многие элементы исторического убранства сохранились, хотя и значительно пострадали от времени и человеческого отношения.
29.
30.
Интерьер общественных зон, которые мы разместили на втором этаже представляет собой консервация сохранившихся элементов убранства в сочетании предметами мебели дизайна XX и XXI века, дополнив сложные изгибы ордера колонн и узор лепнины простыми геометрическими формами и линиями мебели. Чтобы не закрывать обзор каминных фасадов и не загромождать пространство, мы предложили часть кресел сделать прозрачными.
31.
Во второй гостиной расположение колонн, образующих круг, подсказало нам форму дивана. Легендарный диван Вернера Пантона прекрасно подошел и по функции. На обычном диване незнакомые люди редко подсаживаются друг к другу, а этот диван позволяет разместиться большому количеству человек, при том каждый находится в приватной зоне. Кроме того, направление сидений позволяет гостям общаться в центральной зоне или уединиться с книгой у окна или камина.
32.
33.
34.
Настроение в зале создают арт-объекты, снижая градус серьезности и парадности исторической архитектуры. Как, например, диско-шар на полу или мраморная статуя итальянского скульптора-хулигана Фабио Виале, покрытая татуировками.
35.
И, наконец, гостиничный номер нашего бутик-отеля. Номер состоит из двух комнат, гостиной и спальни, гардеробной и санузла
Важной темой сегодня является кастомизация. В интерьерах номеров нам хотелось уйти от ощущения гостиницы. Так, как будто вы остановились погостить у хозяина усадьбы, среди предметов мебели и искусства, которыми он и его семья любовно обставляли свое жилое пространство.
36.
37.
38.
39.
Нам хотелось создать пространство, где стерты грани между функциональным и художественным. Центральным элементом спальни является кровать из алебастра арт-объект Рика Оуэнса. Мы не являемся сторонниками размещения телевизора в спальне, и, как вы можете наблюдать, его в нашей спальне нет. Однако это не частный интерьер, а гостиничный номер, поэтому мы предусмотрели возможность для постояльцев посмотреть в номере черно-белое кино – по заказу в номер приносят проектор.
40.
41.
42.
43.
44.
45.
Ванную в спальне вы уже видели. Помимо нее в номере есть санузел с душем. Декоративные стены пространства санузла контрастируют со строгостью линий и минимализмом дизайна сантехнической системы Abaco от Сеа.
46.
Социально-значимой целью нашего проекта является привлечение внимания к огромному потенциалу культурного наследия и необходимости его сбережения и эффективного использования как одного из важнейших ресурсов национальной и мировой экономики, на примере усадебного ансамбля «Покровское-Стрешнево» путем придания старинной усадьбе новой функции. Культурное наследие, наряду с природными богатствами, – капитал невозместимой ценности. Утраты культурных ценностей невосполнимы и необратимы. Они не могут быть компенсированы ни развитием современной культуры, ни созданием новых значительных произведений.
Спасибо за внимание!
47.
Экскурсии по усадьбам на сайте usadboved.ru