Category:

Усадьба ВАСИНО, Московская область, Чеховский район






Дом в усадьбе Васино - один из немногих уцелевших в Подмосковье образцов деревянных усадебных построек в стиле ампир. Предположительно, автором построек в Васино является архитектор А. С. Кутепов, выстроивший очень близкий по архитектурной композиции усадебный деревянный дом в имении Трубецких Ахтырка. 30 сентября 2014 года была продана на аукционе по программе "рубль за метр" компании ASG и восстанавливается.
Все старые фотографии были предоставлены ASG. Предлагаю осмотреть усадьбу внутри и изнутри, обсудить реставрацию и вспомнить историю..


усадьба Васино





Дата фотографий: 2015 год, 10 апреля.



усадьба Васино
2. Дорога к усадьбе Васино. На заднем плане виднеется парк усадьбы.
 
усадьба Васино
3. Фасад с портиком. Пока 4 колонны из 6. Усадебный дом украшали два шпиля, которые были размещены над крыльями.
 
А двадцать лет назад вот так выглядело...
 
усадьба Васино
1992 г. Усадебный дом.
 

Усадьба Васино была основана во второй половине XVIII века помещицей А. И. Плаховой, затем находилась у её наследников. В середине XIX в. усадебный комплекс перешел к чиновнику П. Ф. Вельяминову и многие исследователи связывают создание архитектурного ансамбля, от которого ныне сохранился только главный дом, именно с этой фамилией.


Предположительно, автором построек в Васино является архитектор А. С. Кутепов, выстроивший очень близкий по архитектурной композиции усадебный деревянный дом в имении Трубецких Ахтырка под Сергиевым-Посадом, который сгорел в 1920-х годах. Кутепов был учеником известного зодчего Доменико Жилярди.

 
усадьба Ахтырка
Начало XX века. Главный дом усадьбы Трубецких Ахтырка.
 
усадьба Васино
4. Южное крыло, видны следы замены бревен.
 
усадьба Васино
5. Портик тосканского ордера.
 

Во 2-й половине XIX столетия владельцы Васина менялись, это были мелкопоместные дворяне. Владельцами усадьбы были помещица  А.Н. Вечеслова, и до революции 1917 года — депутат серпуховского дворянства П.П. Костылев. В усадьбе была создана коллекция картин, книг и фарфора. К сожалению, их судьба неизвестна.


В главном доме после революции 1917 года размещались сначала военный комиссариат, затем — общеобразовательная школа, а после её переезда в новое здание в усадьбе проживали учителя. В конце ХХ века здание стояло заброшенным. Усадьба была объявлена памятником истории и культуры государственного значения в 1974 году. В последние годы усадьба была брошена.


30 сентября 2014 года усадьба Васино была продана на аукционе в рамках программы "Усадьбы Подмосковья". Победителем аукциона стало ЗАО «Алтын-И», входящее в инвестиционную группу компаний ASG – партнера Московской области в программе «Усадьбы Подмосковья». Сейчас идет реставрация.

 
усадьба Васино
6. Старые колонны.
 
усадьба Васино
7.

 
усадьба Васино

8.
 
усадьба Васино
9. Окно первого этажа.
 
усадьба Васино
10. А вот и второй шпиль.
 
усадьба Васино
11. Западный фасад дома.
 
усадьба Васино
12.
 
усадьба Васино
13. Вид на второй антресольный этаж.
 
усадьба Васино
14.
 
усадьба Васино
15. Парящая лестница.
 
усадьба Васино
16. Подвалы из старого кирпича. Белый камень использовался только в облицовке цоколя здания.
 
усадьба Васино
17.
 
усадьба Васино
18. Лестница в антресоли.
 
усадьба Васино
1995 г. Лестница в западном крыле.
 
усадьба Васино

19.
 
усадьба Васино
20. Здесь планируются голландская печь, русская печь и турецкая печь.
 
усадьба Васино
21.
 
усадьба Васино
22. Одна из парадных комнат.
 
усадьба Васино
23. Планировка состояла из внутреннего коридора и анфилады парадных комнат, выходящих на главный фасад.
 
усадьба Васино
24. В доме частично сохранились обои с оригинальным и необычным рисунком - розы и кувшинки на ярком ультрамариновом поле, рядом с розами еще желтые лютики - на других обрывках видны...остались только многослойные обрывки.

 
усадьба Васино
25.
 
усадьба Васино
26.
 
усадьба Васино
27.
 
усадьба Васино
28. Под обоями сохранились газеты 1870-х годов.
 
усадьба Васино
29. Купол на низком барабане.
 
усадьба Васино
30. Изразец.
 
усадьба Васино
31. Сохранившиеся печные изразцы.
 
усадьба Васино
1995 г. Изразцовая печь.
 
усадьба Васино
32. Второй этаж.
 
усадьба Васино
33. В книге "ПАМО", 1975 года упоминается о том, что здание поставлено "на белокаменном цоколе".
 
усадьба Васино
34.
 
усадьба Васино
35. В доме уцелели старые филенчатые двери.
 
усадьба Васино
36.
 
усадьба Васино
37. Восстановленный шпиль.
 
усадьба Васино
38.
 
усадьба Васино
1995 г. Полукруглое окно с завершением.
 
усадьба Васино
39. Основу парка составляют двухсотлетние липы.
 
усадьба Васино
40. Вид на южную часть дома от липовой аллеи.
 
усадьба Васино
41. Южная сторона.
 
усадьба Васино
42. До начала реставрации здание было обшито тесом.
 
усадьба Васино
43. Ждем итогов реставрации.





Старые фотографии


усадьба Васино
1950-1955 гг. На фоне главного дома в усадьбе Васино. Источник: pastvu.com.
усадьба Васино
1975 г. Северный фасад. Фотография Бойко.
 
усадьба Васино
1975 г. Южный фасад, фотография Бойко.
 
усадьба Васино
1990 г. Паспорт на парк.
 
усадьба Васино
1991 г. Купол на пониженном барабане.
 
усадьба Васино
1991 г. Восточное крыльцо.
 
усадьба Васино
1991 г. Липовая аллея в парке.
 
усадьба Васино
1991 г. Северо-восточный фасад.
 
усадьба Васино
1991 г. Усадебный парк.
 
усадьба Васино
1991 г. Партер перед домом.
 
усадьба Васино
1991 г. Юго-западный фасад.
 
усадьба Васино
1991 г. Вход в подвал.
 
усадьба Васино
1992 г. Большой пруд.
 
усадьба Васино
1992 г. Поляна в парке.
 
усадьба Васино
1992 г. Учетная карточка по главному дому.
 
усадьба Васино
1992 г. Липовая аллея в парке.
 
усадьба Васино
1992 г. Усадебный дом.
 
усадьба Васино
1992 г. Парк у реки.
 
усадьба Васино
1995 г. Окно в центральной части дома.
 
усадьба Васино
1995 г. Дверь в антресолях и в крыльях дома.
 
усадьба Васино
1995 г. Двустворчатая филенчатая дверь.
 
усадьба Васино
1995 г. Окно первого этажа.
 
усадьба Васино
1995 г. Фрагмент портика.
 
усадьба Васино
1995 г. Северо-восточный фасад.
 
усадьба Васино
1995 г. Парадный вход.
 
усадьба Васино
1995 г. Окно ризолита.
 
усадьба Васино
1995 г. Полукруглое окно с завершением.
 
усадьба Васино
1995 г. Изразцовые печи в парадном зале.
 
усадьба Васино
1995 г. Продух в подполье.
 
усадьба Васино
1995 г. Юго-западный фасад.
 
усадьба Васино
1995 г. Вход в подвал.
 
усадьба Васино
1995 г. Западное крыльцо центральной части дома.
 
усадьба Васино
1995 г. Лестница в западном крыле.
 
усадьба Васино
1995 г. Окно со ставнями.





Обмеры и планы




усадьба Васино
1975 год. Обмеры.
 
усадьба Васино
1975 год. Обмеры.
 
усадьба Васино
1975 год. Обмеры.
 
усадьба Васино
1975 год. Обмеры.
 
усадьба Васино
1990 год. Парк, ситуационный план.
 
усадьба Васино
1990 год. Парк, схема фотофиксации. Исполнитель: архитектор И.Ю. Яровой.
 
усадьба Васино
1995 год. Юго-восточный фасад.
 
усадьба Васино
1995 год. Северо-западный фасад.
 
усадьба Васино
1995 год. Боковые фасады.
 
усадьба Васино
1995 год. Разрез 1-1.
 
усадьба Васино
1995 год. Разрез 2-2.
 
усадьба Васино
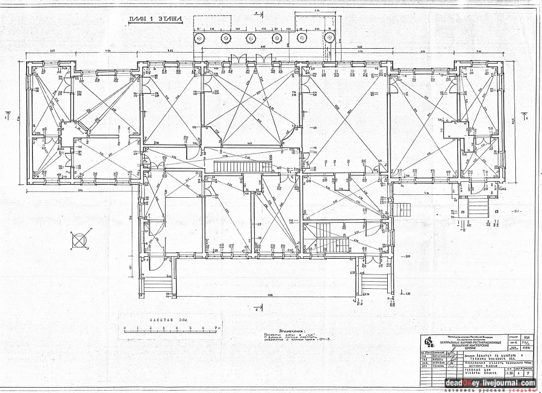
1995 год. План 1го этажа.
 
усадьба Васино
1995 год. План 2го этажа.





Старые карты





усадьба Васино
1792 год.
 
усадьба Васино
1797 год.
 
усадьба Васино
1821 год.
 
усадьба Васино
1843 год.
 
усадьба Васино
1860 год.
 
усадьба Васино
1939 год.
 
усадьба Васино
1982 год.
 
усадьба Васино
2001 год. Google.
 
усадьба Васино
2013 год. Google.
 
усадьба Васино
2014 год. Google.



Ссылки

"Памятники архитектуры Московской области", том 2, 1975 год, страница 307.

Архив ASG.


http://lobgott.livejournal.com/7176.html

http://alxlav.livejournal.com/11431.html

http://chehovchanka-info.ru/chekhov-times/nasha-istoriya/562-usadba-vasino-istoricheskie-zadvorki.html


Спасибо, есть что добавить?

promo vadimrazumov.ru february 20, 16:31 11
Buy for 100 tokens
Друзья, свершилось! Усадьба Быково будет жить! Сегодня за право стать владельцем достопримечательности на аукционе боролись пять участников. Согласно открытым данным, размещенным на сайте торгов, Быково купил Михаил Григорьевич Масловский. Он совершил финальную ставку в 270,5 млн. рублей, что в два…